東白鬚第二マンション / 1階 143,000円 49.88m2 築43年 賃貸空室情報|曳舟鐘ヶ淵の賃貸売買墨田区の賃貸不動産情報なら若草不動産

墨田区・東武伊勢崎線・鐘ヶ淵の賃貸アパート・マンション・駐車場情報の若草不動産

登録・更新日:2025/08/22

 

東白鬚第二マンション 

  • 即引渡し
1階店舗部分・飲食可/現況スケルトン・お好きな間取りを作れます♪
賃料 14万3000円
管理・共益費
-円
敷金 2ヶ月 礼金 1ヶ月
主要アクセス 東武伊勢崎・大師線 鐘ヶ淵駅  から 徒歩5分 保証金 - 面積 49.88m 2  ( 15.08坪 )
  • 1階物件
  • 飲食店舗可

[メールで簡単] この物件を問い合わせる

外観図

外観

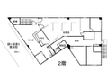
間取り図面

間取り

電話番号
03-3619-7744
受付時間
9時~18時
問い合せ番号
2_1726

[メールで簡単] この物件を問い合わせる

  • 外観

担当者からコメント

☆墨堤通りに面す好立地
☆敷地内商業施設あり
☆1階店舗部分
☆飲食可
☆事務所等相談可
☆業種相談可
電話番号
03-3619-7744
受付時間
9時~18時
問い合せ番号
2_1726

[メールで簡単] この物件を問い合わせる

物件詳細情報

基本

アクセス 東武伊勢崎・大師線 鐘ヶ淵駅  から 徒歩5分 種別 事務所・店舗・他
所在地 東京都墨田区堤通2 7-28 学校区 -

費用

賃料 14万3000円 管理・共益費 -
礼金 1ヶ月 敷金・保証金 2ヶ月 ・ -
償却・敷引 - 雑費 -
家賃保証会社 必加入、 初回賃料+その他固定費の100%~、以降毎年賃料の10%(下限4万円)、口座振替サービス利用料330円(全保連㈱に加入の場合です。保証会社やご契約内容により異なります。) 保険料 3年契約 -
契約期間 3年 更新料 新賃料の1ヶ月分
仲介手数料 1ヶ月 (税込 14万3000円)
その他費用
(月次等)
商店会費月額、1200円

建物

間取り 専有面積 49.88m 2  ( 15.08坪 )
構造 鉄骨鉄筋コンクリート造 完成年月 1982年03月 ( 築43年 )
所在階 / 階数 1階  / 13階建 総戸数 -
駐車場 - バイク置場 -
駐輪場 敷地内 管理 -
リフォーム - リノベーション -
設備・条件 一階物件/飲食店舗可
営業時間は22時まで/店舗使用細則あり/民泊不可/掲載内容と現況が相違する場合は現況を優先致します。/借家人損害賠償保険の保険料はお問い合わせください。/更新時更新手数料0.5ヶ月/退去時、原状回復必須、ハウスクリーニング・鍵交換費用 が入居期間問わずかかります。

その他

現況 ・ 入居 空室  ・  即時 取引態様 仲介
次回更新日 2025/09/22 QRコード

QRコードから物件情報を見ることが出来ます。読み取りにくい方はこちらからQRコードを拡大できます。

担当者 -

東白鬚第二マンションへの お問い合わせは株式会社 若草不動産 本店まで

株式会社 若草不動産 本店
131-0031東京都墨田区墨田5丁目43番14号

会社案内

印刷する

お電話・FAXでのお問い合せ
TEL:03-3619-7744 FAX:03-3619-0846
受付時間
9時~18時

物件の空き状況や、内見希望などお気軽にお問い合わせください

[メールで簡単] この物件を問い合わせる

こちらの物件もあります。

  • 東京都墨田区墨田

    35万2000円

    222.85m²

    鐘ヶ淵駅から徒歩 1分

    候補

  • 東京都墨田区墨田

    42万420円

    176.36m²

    鐘ヶ淵駅から徒歩 4分

    候補

  • 東京都墨田区墨田

    6万6000円

    19.2m²

    鐘ヶ淵駅から徒歩 6分

    候補

  • 東京都墨田区墨田

    6万6000円

    19.2m²

    鐘ヶ淵駅から徒歩 5分

    候補

  • 東京都墨田区墨田

    7万7000円

    20m²

    鐘ヶ淵駅から徒歩 2分

    候補

  • 東京都墨田区堤通

    14万3000円

    49.88m²

    鐘ヶ淵駅から徒歩 5分

    候補

最近見た物件 (1)